ТРИСТАЕН АПАРТАМЕНТ В МЛАДОСТ!
Характеристики
  • КОД НА ИМОТА:
  • 9483
  • ВИД ИМОТ:
  • 3-стаен
  • ПЛОЩ:
  • 101
  • КВ.М.
  • ЦЕНА:
  • 167000
  • Варна,
  • Младост 2
  • ГОДИНА СТРОИТЕЛСТВО:
  • 2028
  • БРОЙ СПАЛНИ:
  • 2
  • БРОЙ СТАИ:
  • 3
  • СТАТУС НА ИМОТА:
  • Продава
  • Етаж:
  • 3
  • Етажи:
  • 18
  • Обзавеждане:
  • Необзаведен
  • Вид строителство:
  • Тухла
  • Цена кв.м.:
  • 1649
  • Отопление:
  • Електричество
  • Ново строителство:
  • Да
  • Балкони (бр.):
  • 2
  • Тоалетни (бр.):
  • 1
  • Баня с тоалетна (бр.):
  • 1
  • Етап:
  • преди акт14
  • Чиста площ(кв.м.):
  • 82

Описание

HOLDING GROUP REAL ESTATE ПРЕДЛАГА НА ВАШЕТО ВНИМАНИЕ:
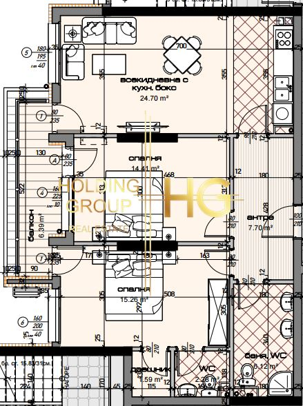
Просторен и функционален 3-стаен апартамент в гр. Варна, ж.к. Младост – идеален избор за семейство или за инвестиция. Имотът е част от модерна жилищна сграда ново строителство с 5 асансьора, отличаваща се със съвременна архитектура и качествено изпълнение на общите части. Общата площ е 101.3 кв.м, като разпределението е премислено за максимален комфорт: светла дневна зона с място за кухненски бокс и трапезария, две самостоятелни спални, една баня с тоалетна, отделна тоалетна за удобство в ежедневието, както и два балкона, осигуряващи приятни открити пространства за отдих. Големите прозорци гарантират естествена светлина през целия ден, а оптималното разположение на помещенията създава усещане за простор и уют.
Локацията в Младост 2 осигурява бърз достъп до ключови пътни артерии и разнообразни удобства, а сградата разполага с асансьор и контрол на достъпа. Имотът е подходящ за купувачи, търсещи съвременно градско жилище с ясен потенциал за висока ликвидност и дългосрочна стойност.
Младост 2 е динамичен квартал с отлична инфраструктура, множество магазини, училища и детски градини, спортни обекти и бърз достъп до центъра на Варна.  
В района има удобен градски транспорт, зелени площи и поддържани междублокови пространства, което го прави предпочитан за семейства и активен начин на живот.
За допълнителна информация, моля обадете се на посочения номер и цитирайте код на обявата: 9483

Информация

Преглед на профила

Изпрати запитване

Сравняване на списъци

Сравни

Изпратете запитване за банков кредит

Искате да продадете Вашия имот на най-добра цена в най-оптималния срок. Попълнете формата и ние ще се свържем с Вас, за да направим безплатна оценка.

Вземете оферта за закупуване на имота Ви и ние ще се свържем с Вас до 30 минути или се обадете на следните телефони:

Последвайте ни