получавайте нови ИМОТИ преди да бъдат рекламирани!
© 2025 Всички права на сайта са собственост на Холдинг Груп Недвижими Имоти ООД.
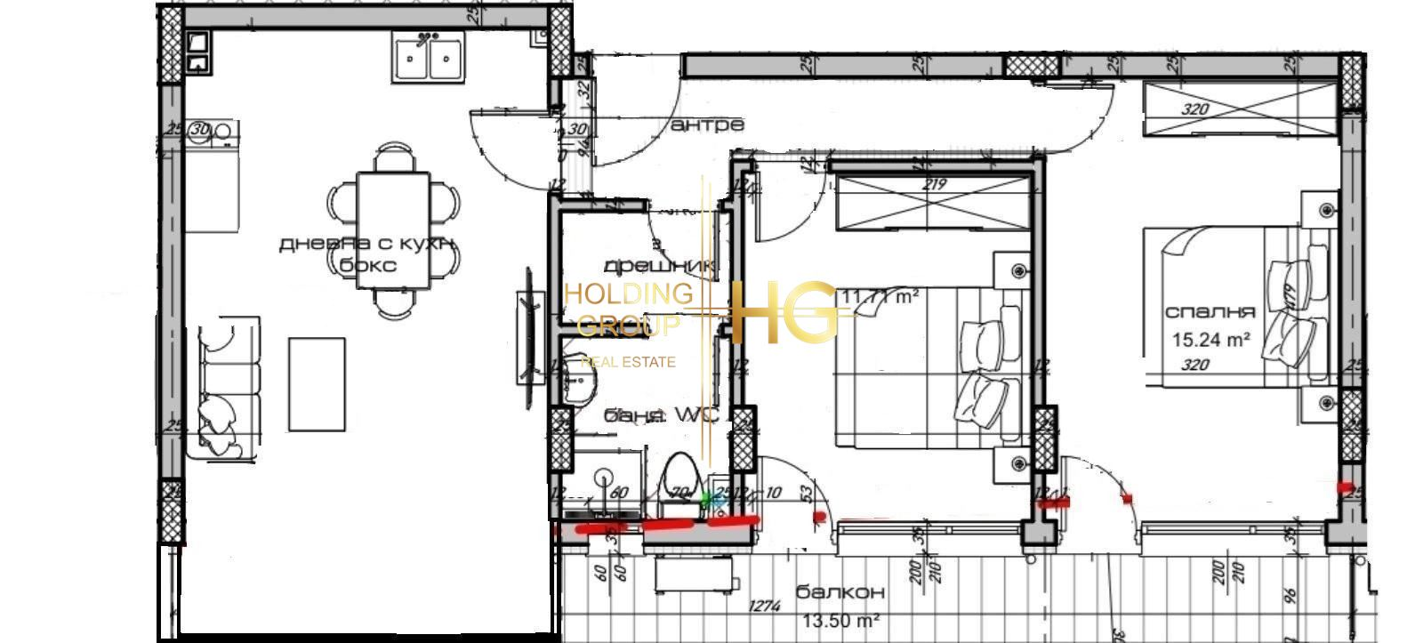
HOLDING GROUP REAL ESTATE ПРЕДЛАГА НА ВАШЕТО ВНИМАНИЕ:
ТРИстаен апартамент в един от най-бързо развиващите се райони на гр. Варна, а именно кв. Изгрев!
Със своите 102 м2 площ и изцяло южното си изложение, този имот съчетава простор, функционалност и целодневна естествена светлина!
Разположен на 1 – ви висок, над гаражи, жилищен етаж от 10 етажна сграда с асансьор, в сграда с Акт 14.
На пешеходно разстояние от автобусни спирки на градския транспорт, хранителни магазини, аптеки ,болници, детски градини и училища.
Разпределение на имота:
Дневен тракт с кухненска част.
Детска стая
Родителска Спалня
Коридор (Антре)
Банята и тоалет заедно
Тераса (Балкон)
Към имота има избено помещение.
Опция за закупуване на подземно или външно паркомясто.
За повече информация и огледи, моля обадете се на посочения телефон и цитирайте код на обявата: 9648
Ако желаете да закупите вашето ново жилище чрез банков кредит, можем да ви съдействаме. Партнираме успешно с всички банкови институции в страната.
Обадете се сега и заявете своята безплатна консултация!
Сравняване на списъци
Сравни