Магазин
Характеристики
  • КОД НА ИМОТА:
  • 8600
  • ВИД ИМОТ:
  • Магазин
  • ПЛОЩ:
  • 3000
  • КВ.М.
  • ЦЕНА:
  • 3000000
  • Варна,
  • Галата
  • ГОДИНА СТРОИТЕЛСТВО:
  • 2026
  • СТАТУС НА ИМОТА:
  • Продава
  • Етажи:
  • 2
  • Вид строителство:
  • Тухла
  • Цена кв.м.:
  • 1000
  • Чиста площ(кв.м.):
  • 3000

Апартаменти

Все още няма налични апартаменти в тази сграда или те не са синхронизирани.

Описание

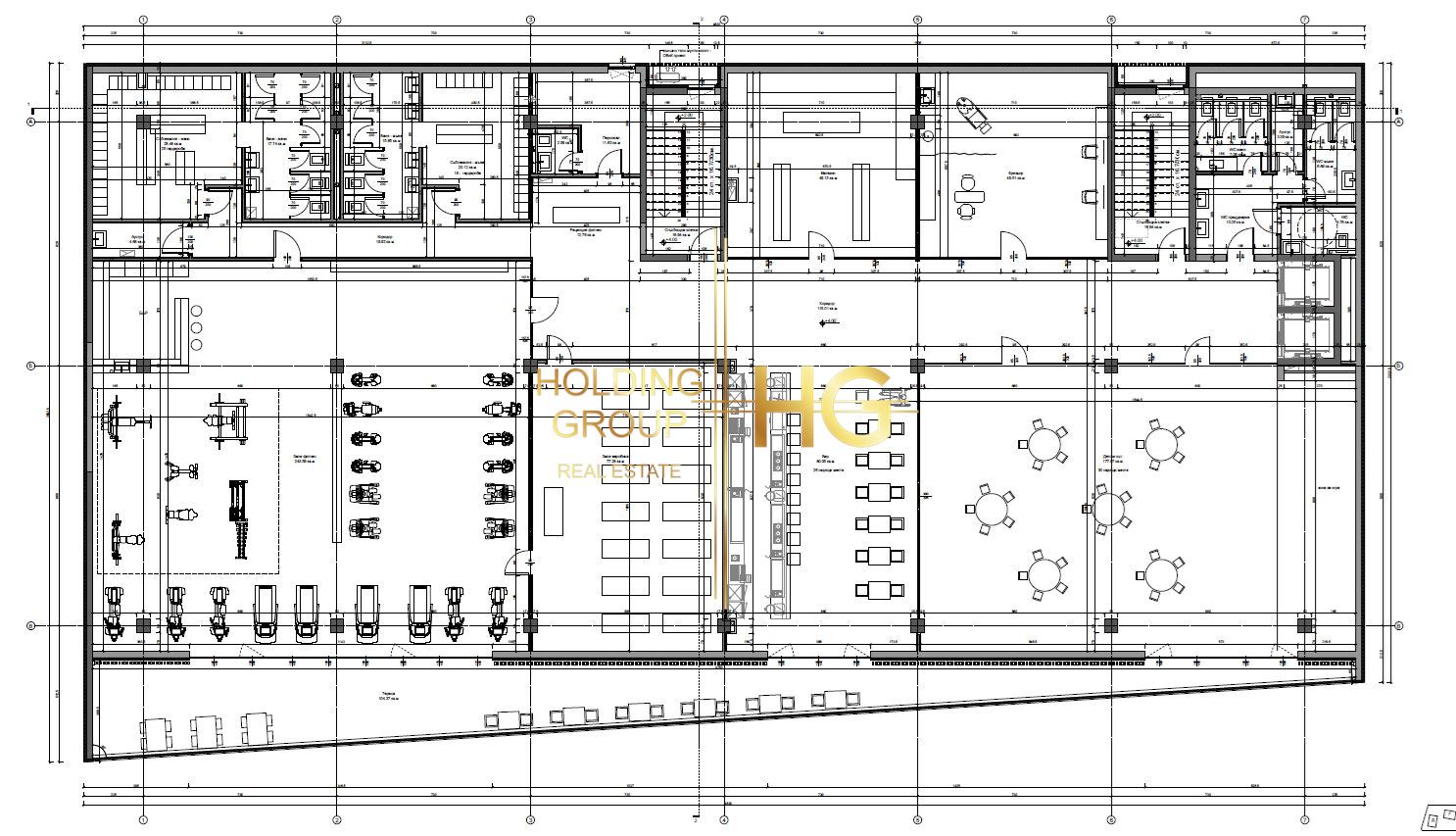
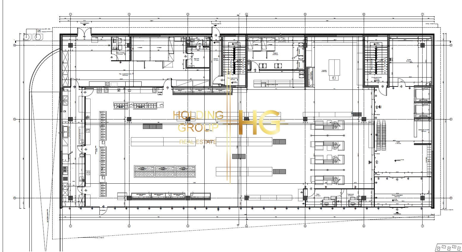
HOLDING GROUP real estate представя на Вашето внимание новостроящ се МОЛ в кв. Галата. Състои се от три нива – подземно и две надземни. Подземното ниво ще бъде складове. На първи етаж е предвиден голям супермаркет, а на вторият етаж ще има сладкарница/ресторант, аптека, фитнес зала и други. Предвидени са много места за паркиране. Достъпът до имота е от главен път, изцяло асфалтов. За подробности и огледи, моля да се обадите на посоченият телефонен номер и да цитирате кода на офертата.
Код на офертата  № 8600

Информация

Преглед на профила
Геновева Митева

Изпрати запитване

Сравняване на списъци

Сравни

Изпратете запитване за банков кредит

Искате да продадете Вашия имот на най-добра цена в най-оптималния срок. Попълнете формата и ние ще се свържем с Вас, за да направим безплатна оценка.

Вземете оферта за закупуване на имота Ви и ние ще се свържем с Вас до 30 минути или се обадете на следните телефони:

Последвайте ни